Ingenieurbüro Göritz und Sydow
 
Leistungsprofil
 
Referenzen
 
Kontakt

 

Unser Partner Dittmann - Bau GmbH

 

Impressum

Referenzobjekt
 

Klicken Sie für eine Grossansicht!

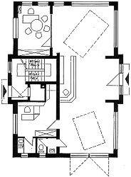
Wohn- und Geschäftshaus

EG - Gewerbefläche (101,21 m2)
OG - Wohnung I (62,99m2), Wohnung II (59,10m2)
DG - Abstellflächen (39,0 m2 bzw. 37,0m2) für Wohnungen


Klicken Sie für eine Großaufnahme auf das Bild.

Erdgeschoß
Obergeschoß
Dachgeschoß

Ingenieurbüro - Bauwesen Dipl.Ing. (FH) Carola Göritz - Schwäbische Str. 16 - 16547 Birkenwerder - Tel. 0 33 03 - 50 14 56 - info@goeritz-sydow.de
© Copyright by Ingenieurbüro - Bauwesen Dipl.Ing. (FH) Carola Göritz - Wir übernehmen keine Haftung für den Inhalt verlinkter externer Internetseiten.
Website designed and programmed by DIGIHAUS GmbH, hn